Sponsored Links

Previous | Next | Discuss :: Free Advice (General Feng Shui)


Topic: Townhouse feng shui, 1 Attachments
Conf: Discuss :: Free Advice (General Feng Shui), Msg: 12360
From: Anon (Hidden from Privacy)
Date: 12/15/2002 07:43 PM

Dear Josephine,

Yes, usually, it is best to check for `leaks' in the house, first.

It would be nice if we can enhance but often, we forget that we must first fix-the-leaks.

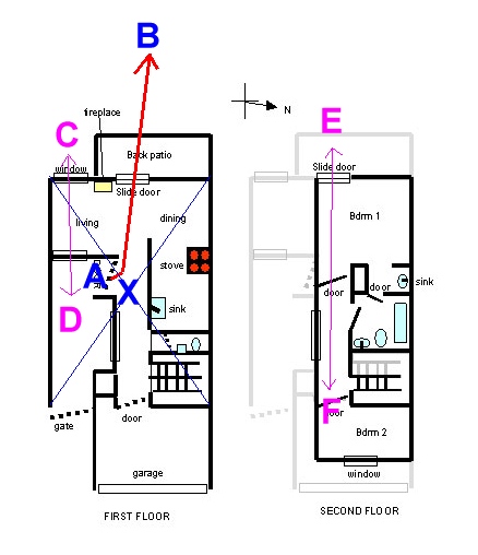
From a Shapes and Forms point, there are several leaks in your home. (Frankly, I have not used other tools, it it involves more anlysis - due to a busy schedule). But from a Shapes and Forms and forms view, there are several leaks:-

1. Narrow hallway, which is on one side of the house.

2. Markings A to B:-

The back patio sliding door. The path of qi from A to B is a direct path. And not auspicious. (Especially if the door is opened).

In addition, because of this long corridor, there is supressed Qi. And it can also leak the other way thru the door towards the garage area.

3. Markings C to D:-

Based on your diagram, it looks like there are widows at C or D. If so, there is a potential leak of qi especially if the windows are opened. Try to open alternative windows in this case.

4. Marking X:-

The entrance into the house is close to the centrepoint of the house at Marking X. There is compressed qi (narrowing) at this area. Upstairs also has similar compressed Qi at markings E and F.

5. In your home, it seems that qi flow cannot properly meander from the living room area to the other side i.e. garage facing side and vice-versa. This has an impact or strifle your luck.

Warmest Regards,
Cecil

On 12/11/2002 6:31:00 PM, Josephine Elizaga wrote:
>Hi to the feng shui masters,
>
>I wish I had read about feng
>shui when I was buying my
>home. I love the location of
>my little townhouse but I feel
>the sectors in my house need
>improving because of bad
>layout. (please see attached
>jpg).
>
>I think my career sector is
>missing. The relationship
>sector is in the garage. My
>fame/reputation is in the
>kitchen and my family sector
>has the fireplace. I have
>narrow hallways that with 2-3
>doors aligned. On top of that,
>the house number is 2476.
>Whew! :-)
>
>I hung a crystal on the
>hallways. I placed plants
>around the fireplace. I placed
>terracota pots in the kitchen.
>But I haven't been promoted in
>5 years even though my boss
>keeps promising it. I still
>feel money is going out of my
>hands too fast even if I
>budget it. Some things are
>still not working for me.
>
>Please let me know other
>improvements I can make. I am
>female, Kua number 8, fire
>horse year.
>
>Thank you for your help.
>
>Josephine


Click to open!townhouse.jpg
Illustration (54,337 bytes)

Copyright 1996-onwards Geomancy.Net, Cecil & Robert Lee. All Rights Reserved.

International Copyright & Intellectual Property Rights Notice
All messages posted TO THIS SITE which includes this forum and other contents made accessable by us to the public cannot be copied; reproduced; recompiled; stored in a retrieval system; or transmitted, in any form or by any means; electronic; mechanical; photocopying; recording; or otherwise. - Learn more

Please kindly contact us at support@geomancy.net. if you should encounter any breach of Copyright and Intellectual Property rights. Thank you in advance!

Back to Feng Shui at Geomancy.Net

 [ Site Search | Forum Search | Picture Search | Site Map ]

 

Help Desk: (65) 9785-3171

 

 

 

Highlights

Extend your learning with Master Cecil Lee's Applied Feng Shui Made Easy Book.

" Real People, Real Life, Real Situation " - Learn from thousands of actual case studies at our popular Free Advice Forum.

" Worry-Free Professional Feng Shui Services " - from the authors of Geomancy.Net

[ Award & Accolades ]
 

Site Navigation

Home
   Feng Shui Freebies
   Feng Shui Resources
     Fun with Feng Shui
     Major FS Theories
     Feng Shui Articles
     Feng Shui Advice
     FS Reference
     Slide Show
     Calendar of Events
     Educational Polls
     Site Review
     Yearly Forecast
     Chinese Horoscope
     Popular Topic
   Picture Resources
   Chinese Horoscope
   Personalised Reports
   e-Bookstore
   Feng Shui Courses
   Products & Services
   Consultation Services
   Shop @ Geomancy
   Students Services
   Events @ Geomancy
   Webmaster
   FAQ / Help
   About Us
   Contact Us
   Members Area
   Ask Expert Forum
   Search Website
   Site Tools
   Others Areas
   Live Chat
   Recommend Us
   Site Map

Google SiteSearch

Geomancy.net Web
Search Powered by Google

Sponsored Links