Sponsored Links

Previous | Next | Discuss :: Free Advice (General Feng Shui)


Topic: Leaks, 1 Attachments
Conf: Discuss :: Free Advice (General Feng Shui), Msg: 11752
From: Anon (Hidden from Privacy)
Date: 8/12/2002 11:21 AM

Dear Cecil,

> What is needed is a screen or a partition (if possible) - minimum
> up to the height of the door frame.
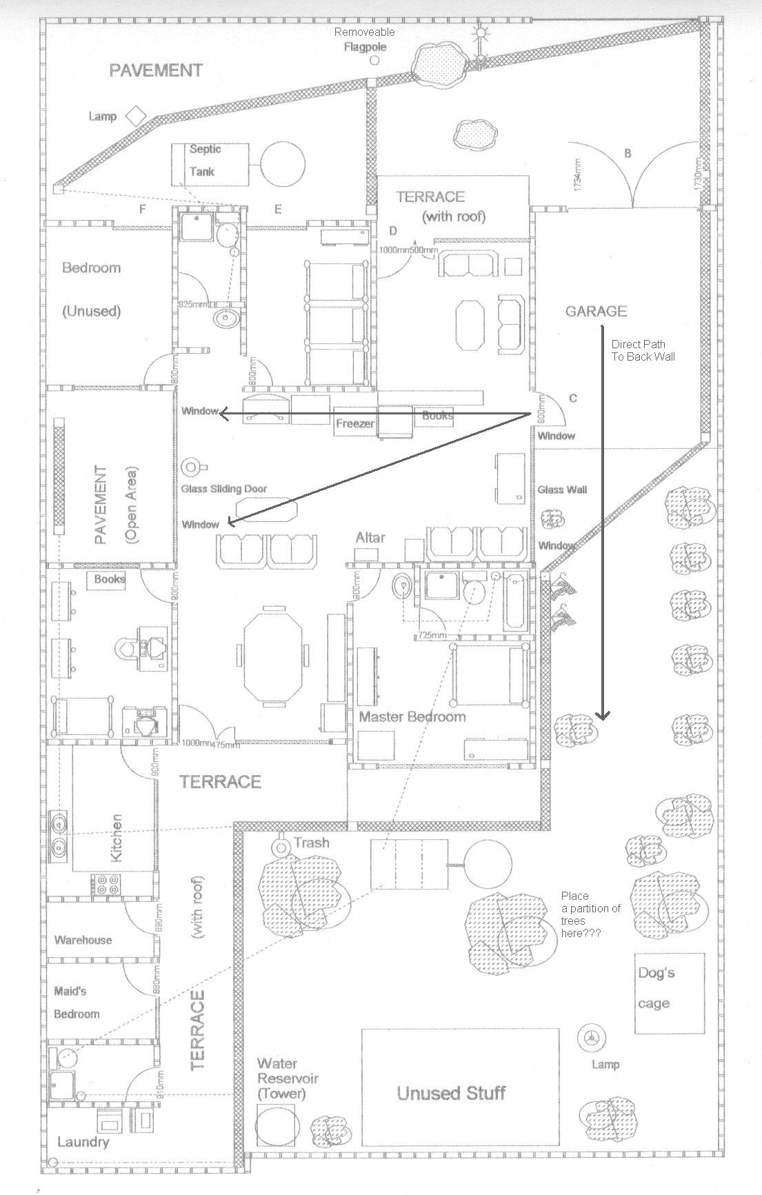
Can I use trees as a partition since it is open area behind the garage? And where should I place the partition?

> There is not much choice. do not open the front door together
> with the sliding door opened.
Fortunately, we seldom use the sliding door. It is closed whole day.

> Yes, in my opinion, there are too many `mouths' in your home
> especially, if you open most of the windows/ two sliding panels
> and even the front door. Plus, the side windows - if they are
> immediately close the the front of the house.
>
> Such a house will not prosper unless, you have a proper balance
> of the openings or the `mouth' of the house.
I think you should take a look at the picture I'm attaching for a better understanding. The current front door is at C.

Also, I have a water reservoir tower and laundry area at the back of the house. Is this considered leak?

Thanks in advance.

Regards,
Wasis

Click to open!Leaks.JPG
House Plan and Identified Leaks (205,881 bytes)

Copyright 1996-onwards Geomancy.Net, Cecil & Robert Lee. All Rights Reserved.

International Copyright & Intellectual Property Rights Notice
All messages posted TO THIS SITE which includes this forum and other contents made accessable by us to the public cannot be copied; reproduced; recompiled; stored in a retrieval system; or transmitted, in any form or by any means; electronic; mechanical; photocopying; recording; or otherwise. - Learn more

Please kindly contact us at support@geomancy.net. if you should encounter any breach of Copyright and Intellectual Property rights. Thank you in advance!

Back to Feng Shui at Geomancy.Net

 [ Site Search | Forum Search | Picture Search | Site Map ]

 

Help Desk: (65) 9785-3171

 

 

 

Highlights

Extend your learning with Master Cecil Lee's Applied Feng Shui Made Easy Book.

" Real People, Real Life, Real Situation " - Learn from thousands of actual case studies at our popular Free Advice Forum.

" Worry-Free Professional Feng Shui Services " - from the authors of Geomancy.Net

[ Award & Accolades ]
 

Site Navigation

Home
   Feng Shui Freebies
   Feng Shui Resources
     Fun with Feng Shui
     Major FS Theories
     Feng Shui Articles
     Feng Shui Advice
     FS Reference
     Slide Show
     Calendar of Events
     Educational Polls
     Site Review
     Yearly Forecast
     Chinese Horoscope
     Popular Topic
   Picture Resources
   Chinese Horoscope
   Personalised Reports
   e-Bookstore
   Feng Shui Courses
   Products & Services
   Consultation Services
   Shop @ Geomancy
   Students Services
   Events @ Geomancy
   Webmaster
   FAQ / Help
   About Us
   Contact Us
   Members Area
   Ask Expert Forum
   Search Website
   Site Tools
   Others Areas
   Live Chat
   Recommend Us
   Site Map

Google SiteSearch

Geomancy.net Web
Search Powered by Google

Sponsored Links